Novant Health
Scotts Hill Medical Center 

Scotts Hill, North Carolina

Following the completion of a Strategic and Facility Master Plan, New Hanover Regional Medical Center (NHRMC) chose to be acquired by Novant Health. A key outcome of this plan was the development of the Scotts Hill Medical Center, designed to meet the growing healthcare needs of northern New Hanover and eastern Pender counties. Novant Health advanced this vision through a comprehensive Campus and Facility Master Plan, shaped by enhanced programming and community input. 

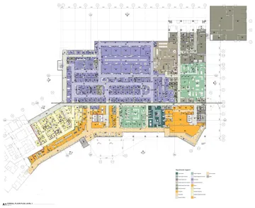
The existing Scotts Hill site included an Ambulatory Surgery Center (ASC) and a standalone Emergency Department with a helistop. The expansion includes a new 66-bed hospital (with future capacity for 250 beds) and a 60,000 bgsf Medical Office Building (MOB), expandable to 120,000 bgsf. The hospital will feature 58 medical/ surgical rooms, 8 intensive care units, 6 observation rooms, 8 operating rooms, and a full imaging department. The MOB will house outpatient services, screenings, and physician offices. 

Key project goals include optimizing travel distances, improving patient and employee satisfaction, achieving financial targets, and staying on schedule and budget. Design solutions include separating public and service areas, centralized elevators, and a 36-bed racetrack layout for efficient staffing and future growth. 

The campus is designed to be a one-stop destination for care, offering services such as imaging, cancer treatment (radiation and chemotherapy), and cardiac rehabilitation. The co-location of medical and radiation oncology will reduce travel burdens for patients undergoing frequent treatments. The Scotts Hill Medical Center reflects Novant Health’s commitment to combining tradition with innovation and expanding access to high-quality, personalized care close to home. 

Kahler Slater is partnered with LS3P Associates Ltd. and Rodgers Builders, Inc., to design and deliver the project.